LiDAR apartment scan with Rhino on iPhone
Introduction
We used the Rhino app on an iPhone with LiDAR to scan our apartment and make clearer decisions about layout and furniture.
LiDAR and Rhino
LiDAR captures depth quickly; Rhino on iPhone turns those scans into workable 3D geometry for review on device.
Process
We walked room by room while the phone mapped space; Rhino updated the model as we moved.
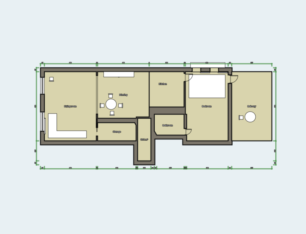
Screenshots


Still frames from the scan


Conclusion
Handheld LiDAR plus a focused modeling app is enough for early layout exploration before committing to bigger CAD or renovation steps.